Arquitectas: Inmaculada Puche Forte y Ana Giménez Más
Promotor: GRUPO SIM
Superficie: 650 m2 + exteriores
Presupuesto: 300.000 €
Ubicación: carretera de Almansa s/n, Yecla, Murcia.
Espacios abiertos y conectados para sentirse como una gran familia.
Esta era la premisa principal a la hora del diseño de Oficinas Grupo SIM. La relación entre trabajadores, gerentes, clientes, los usuarios, es cercana entre todos ellos en esta empresa y así pidieron que lo contara su nuevo espacio de trabajo.
El estudio de las personas y sus relaciones y su conversión en diseño del espacio para mejorar la calidad del mismo, aportando confort y tranquilidad, se transforma en eficiencia y productividad para la empresa.
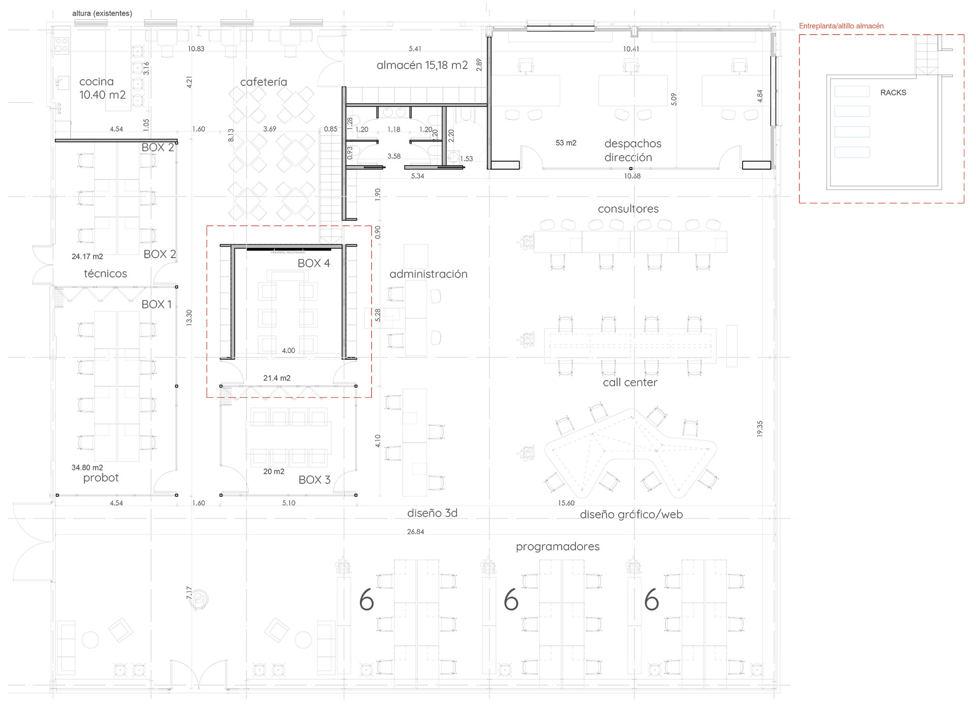
Bajo estos puntos de partida se diseñaron las distintas áreas de las oficinas, componiéndose de una gran sala común, en la que se distribuyen áreas tanto de trabajo como de descanso, llegando a difuminarse estos usos, y apareciendo puestos de trabajos flexibles en todo el área.
A la vez, este grupo de empresas trabaja tanto en conjunto como por separado y es por ello que, en momentos concretos, este espacio de relación debía dar la posibilidad de convertirse en privado.
Los boxes, hay cuatro en el estado más compartimentado, son convertibles a dos de mayor superficie en caso necesario.
Sala privada para gerencia pero siempre conectada con la gran sala, abierta tanto física como visualmente.
Los exteriores juegan un papel importante en ese proyecto, ya que parte del confort interior nos lo aporta el paisaje exterior, el existente y el intervenido dentro de la parcela, ya que se proyectan jardineras bajo las cristaleras y elementos vegetales como sombra para el aparcamiento.
Y espacio de lunch-cocina dando servicio tanto al trabajador como al cliente.
